

















In un appartamento posto al primo piano che affaccia esternamente su tre lati, il tema principale è quello di catturare più luce possibile.
Tutto viene demolito con l’intento di liberare il perimetro lasciando circolare tutt’attorno spazio e luce.
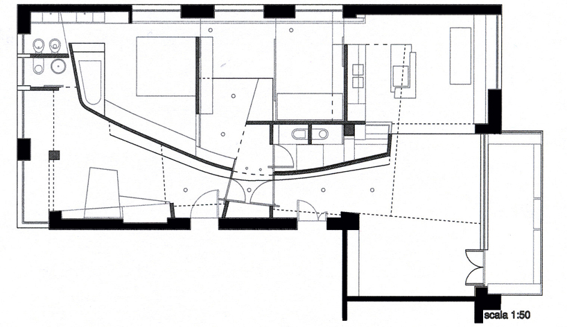
Si parte dallo spazio centrale, con un segno forte, una curva, che separa e collega un dentro da un fuori, affiancata da una libreria che corre lungo quasi l’intero sviluppo è l’elemento morfologico di continuità della parte più sociale della casa: dal soggiorno ti porta allo studio accompagnato dai libri che gradualmente cambiano tema: dalla cucina, alla letteratura, alle riviste di settore. E’ nel punto di contrazione di questa, pressoché al centro dell’appartamento, che si accede alla parte più intima della casa dove c’è una maggiore divisione degli spazi.
Non ci sono spazi serviti e serventi, ma un susseguirsi di ambiti funzionali separati tra loro da pannelli a tutt’altezza. Il design gioca un ruolo importante nella definizione degli spazi insieme al dettaglio, studiato a fondo, per un bisogno estetico ma soprattutto legato alla volontà di lasciar leggere l’immediatezza del segno che ha definito il progetto.
Dalle armadiature fisse come fossero muri, al divano che diventa letto per una coppia di amici, agli scrittoi delle ragazze (Romeo e Giulietta) che possono unirsi, ai lavandini in rame ed alle canne di erogazione.
La forza di un insieme frammentato in parte nella zona notte viene poi ricomposto in un continuum, costruito da pannelli a tutt’altezza, vetro, e sovrapposizioni, intersezioni e compenetrazioni; e spazialità definite dalla luce, sia naturale (con i tagli di luce tra i muri) che artificiale (con ‘camini’ verticali creati tra un controsoffitto e l’altro).
La luce attraversando piani traslucidi e trasparenti, riflette in modo diverso sui differenti materiali: legno, pietra, resina di cemento; i punti di vista sono molteplici e spingono l’occhio a guardare oltre e, laddove il materiale è traslucido, ad immaginare.
