












Una sintesi onirica tra luoghi dell’urbano e luoghi dell’intimo abitare, riferiti al proprio paese d’origine, rivela una dichiarazione d’amore per l’Italia.
La pizza è ritrovarsi a casa
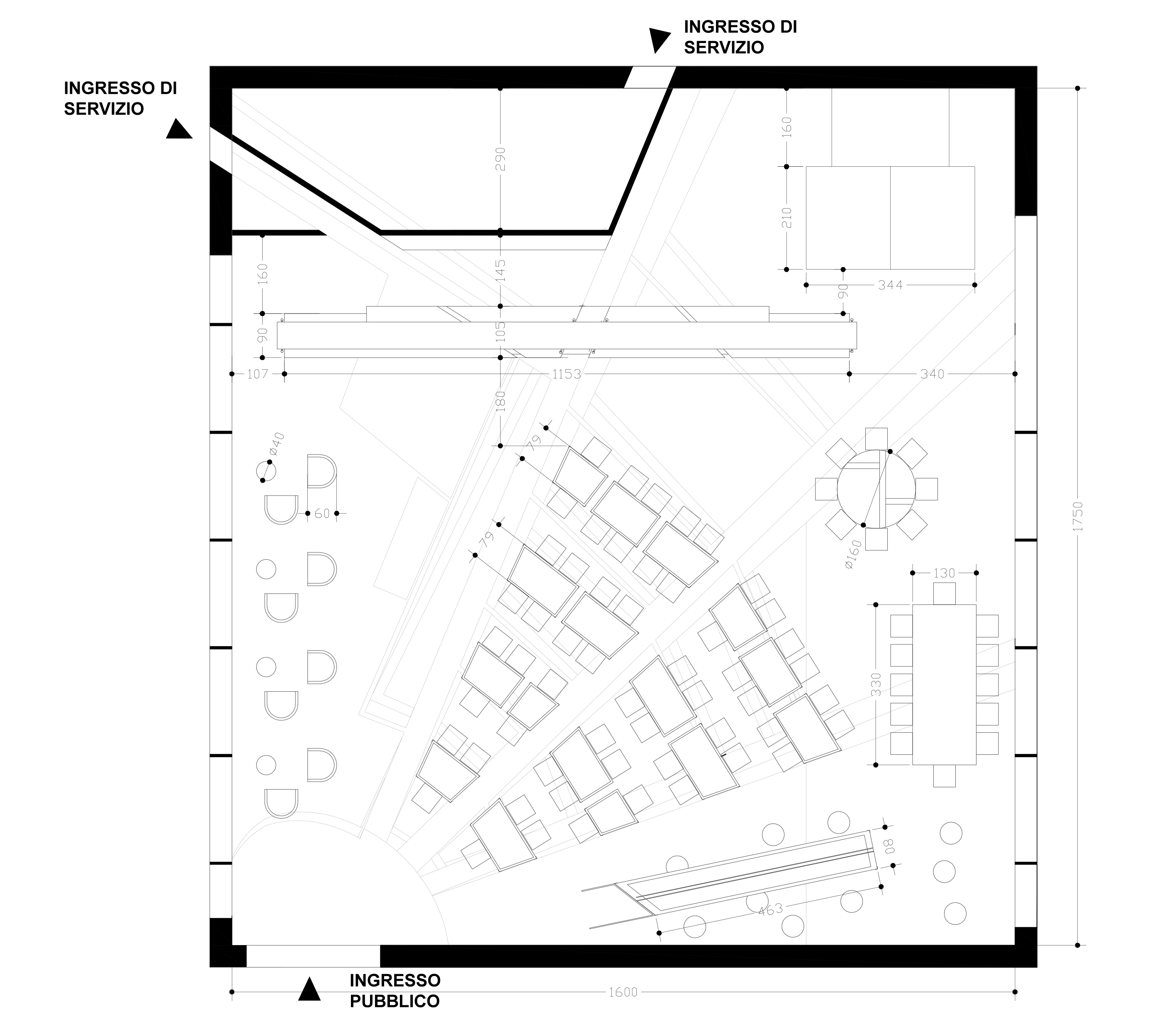
I tracciati viari delle città italiane estrapolati dallo stradario (come emblema delle globalizzazione) sono coperti da un tetto (archetipo della casa)
Si entra in un’atmosfera “Amarcord” dal carattere aperto, in cui chiunque potrà anche proporre un proprio video fatto su Roma o chissà quale altro luogo italiano da riprodurre sui monitor presenti nel locale
…ma ad una condizione…
Il video dovrà riproporre la stessa atmosfera “sfumata”, onirica presente nel locale
Un video dai contorni sfumati dell’alba.
